Круизный терминал имени Нельсона Манделы в Дурбане, ЮАР

Круизный терминал имени Нельсона Манделы в Дурбане, ЮАР

Терминал был задуман как новый портал в Королевство Зулусов, приглашающий туристов познакомиться с провинцией и традиционной культурой. По сравнению с причалом, к которому причаливают круизные лайнеры, его мощная форма представляет собой запоминающийся достопримечательный объект, соединяющий гавань и город. 

Круизный терминал имени Нельсона Манделы в Дурбане, ЮАР

Этот конверт, созданный с учётом явной африканской самобытности, вдохновлён естественными цветами, яркими текстурами и традиционными треугольными мотивами, характерными для ремесел Зулу. Африканский колорит, вдохновлённый произведениями искусства Зулу, уникален, контекстуален и требует внимания, смело контрастируя с традиционной нейтральной «трактовкой», характерной для большинства транспортных зданий по всему миру.

Круизный терминал имени Нельсона Манделы в Дурбане, ЮАР

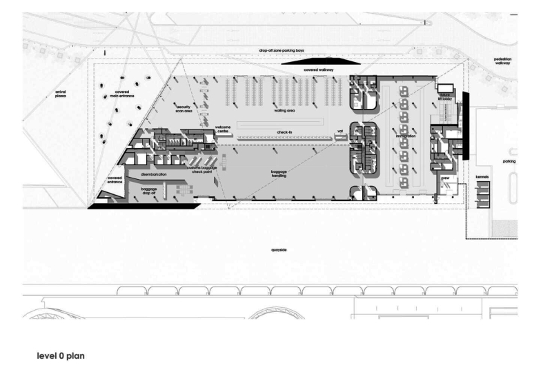
Круизный терминал требует больших потоков людей в короткие сроки, поэтому чёткое и понятное планировочное решение на одном уровне имеет основополагающее значение. Одновременно с обеспечением такой циркуляции терминал предназначен для переоборудования в конференц-центр в течение 5-месячного межсезонья, когда круизы не проводятся. 

Круизный терминал имени Нельсона Манделы в Дурбане, ЮАР

Чтобы обеспечить быстрое выполнение работ, необходимо было уделять особое внимание эффективному движению транспортных средств и пешеходов. Тщательно спланированные пункты въезда и выезда, маршруты движения и зоны высадки обеспечивают беспрепятственный доступ, посадку пассажиров и обработку багажа.

Круизный терминал имени Нельсона Манделы в Дурбане, ЮАР

По сути, это большой ангар с большими пролётами, его ограждающая конструкция состоит из основной стальной конструкции глубиной 1,2 м, покрытой алюминиевым листом. Это техническое решение применяется в вертикальных и слегка наклонных горизонтальных плоскостях и позволяет создать консоль с очень длинным северным краем, закреплённую на одной точке. Система облицовки тщательно продумана, чтобы органично вписаться в общую конструкцию.

Круизный терминал имени Нельсона Манделы в Дурбане, ЮАР

Терминал спроектирован таким образом, чтобы облегчить посадку и высадку 6000 пассажиров в день, а в течение 5 месяцев межсезонья он может быть преобразован в конференц-центр, что достигается за счёт того, что перегородка полностью раздвигается. Из просторных пассажирских помещений открываются широкие виды на обновленный исторический район за его пределами. 

Круизный терминал имени Нельсона Манделы в Дурбане, ЮАР

Круизный терминал имени Нельсона Манделы в Дурбане, ЮАР

Плавно изогнутая крыша спроектирована таким образом, чтобы приглашать пассажиров войти и направить их внимание на причал. По прибытии происходит обратное: тщательно продуманные виды открывают высадившимся пассажирам вид на город за его пределами. Эта экспериментальная последовательность усиливает концептуальное представление о портале и по своей сути отражает дух терминала.

Круизный терминал имени Нельсона Манделы в Дурбане, ЮАР

Круизный терминал имени Нельсона Манделы в Дурбане, ЮАР

Средний рейтинг
0 из 5 звезд. 0 голосов.