
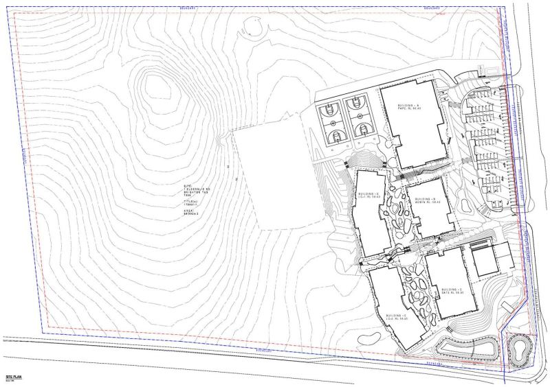
Средняя школа Брайтона, рассчитанная на 600 учащихся 7-12 классов, представляет собой перспективную и инклюзивную образовательную среду с акцентом на современные учебные пространства в помещении и на открытом воздухе. Река Иордан / Куталайна — привычная черта этого ландшафта, долина, обеспечивающая прочную географическую связь между старшей школой и начальными учебными заведениями, расположенными выше по течению.

Куталайна была неофициальной границей между аборигенами Палава и Тасмании на протяжении многих тысяч лет, отделявшей земли народа Большой реки от земель народа Ойстер-Бей, и обе группы регулярно собирались здесь по особым случаям. Основываясь на этом традиционном землепользовании, генеральный план школы определяется двумя взаимосвязанными территориями, обращёнными внутрь, чтобы охватить центральное пространство для собраний, создавая прочную связь с ощущением места в этом районе.

Центральная учебная улица образует естественное водораздел, создавая захватывающее, извилистое ландшафтное пространство, подходящее для школьных собраний, неформального обучения, спокойного созерцания и пассивного отдыха.


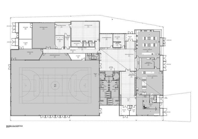
В дополнение к описанию дизайна, геоморфология земли, занятой двумя группами аборигенов, отражена в форме, расположении и текстуре зданий. Узорчатая кирпичная кладка помогает создать единый визуальный язык, а цветовые вариации отличают прибрежные и высокогорные районы по обе стороны Учебной улицы.

Изгибы складчатых крыш повторяют рельеф окружающих холмов, а их многослойность — метафору крон деревьев и подлеска. Окна с подсветкой разделяют плоскости крыши, создавая пространства разной высоты, адаптированные к конкретным педагогическим потребностям, и позволяя естественному свету проникать в центральные зоны для совместной работы.


Нижние крыши создают человеческий масштаб, выходя за пределы фасада зданий, обеспечивая крытые проходы по обе стороны Учебной улицы, место встреч для обмена знаниями и дружескими отношениями посредством уважительного взаимодействия друг с другом и привязанности к месту.

